松山區光復北路210巷43號7樓13松山華城10區

889法拍網

松山區光復北路210巷43號7樓13松山華城10區|台北市-松山區-法拍屋

松山區光復北路210巷43號7樓<13>【 松山華城10大樓
列印
  • 售3822萬
    售3057萬
    1. 案號:114職四134金
    2. 房屋類型:法拍大樓
    3. 總登記坪數:36.85坪
    4. 每坪單價:82.96萬/坪
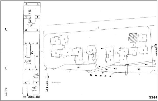
    5. 地址:台北市松山區光復北路210巷43號7樓<13>
    1. (煩請告知聯絡人,您是在House-Info房屋網看到廣告,感恩幫忙)
    2. 0986-508-652
    1. 市話:
    2. 公司名稱:
    3. 公司地址:
    4. 個人網站:
    財欣不動產管理顧問有限公司/統編2830 6053-QR CODE 留言 檢舉 加LINE好友
物件介紹
詳細資料
社區/大樓
屋齡
24年
所在樓層
7樓/共13樓
電梯
未知
法拍屋
本件是法拍拍賣房子
拍次
第二拍
開標日期
115/01/07
坪數說明
建物登記
36.85
主建物
18.27
附屬建物
2.91
公共設施
15.67
特色描述

▲拍賣公告:金服公司
▲拍賣標的物:台北市松山區光復北路210巷43號7樓<13>
▲【謄本資料】:
建物登記:總坪數36.85坪主建坪18.27坪,附屬坪2.91坪,公設坪15.67坪
▲【法院筆錄】:
建物鄰近台北小巨蛋捷運站商圈,現場無水、無電,似無人居住,債務人表示偶爾會來,每月管理費新臺幣500元
▲【生活機能】:
▲【拍次說明】:
標售拍次(目前拍次底價):
第一拍底價:3822萬
第二拍底價:3057萬
第三拍底價:
拍賣日期:115/01/07
▲台北∣新北∣桃園∣新竹
★Houseinfo:http://www.xn--ogt54mdnjqrqpix.tw/
▲【代標服務】
<過濾案件>追蹤拍賣日期...
<評估案件>投標全場陪同及標價最後建議...
<包辦交屋>與法院協商現住人交屋事項...
<代墊尾款>辦理銀行代墊及投標尾款手續...

※此案件為法拍屋無法看屋,實際狀況以法院筆錄為主。
詳細資訊了解請撥李小姐(02)8260-2416|0986-508652
財欣不動產管理顧份有限公司【統一編號】28306523
物件照片
松山法拍屋法拍-0
松山法拍屋法拍-0
松山法拍屋法拍-1
松山法拍屋法拍-1
松山法拍屋法拍-2
松山法拍屋法拍-2
松山法拍屋法拍-3
松山法拍屋法拍-3
松山法拍屋法拍-4
松山法拍屋法拍-4
松山法拍屋法拍-5
松山法拍屋法拍-5
贊助商廣告
物件留言
請注意,如果您詢問的內容與物件不相符合或是廣告,經過審核,系統將會直接刪除您的發問內容
等待圖示
檢舉不實
等待圖示
黃金曝光
889法拍網免責聲明:本系統為開放租用式法拍拍賣聯賣網站建置平台,僅提供查詢-台北,松山,法拍屋-等法拍資訊參考,並不涉入任何諮詢、交易。物件(服務)聯絡人公佈的資訊、文字、照片、圖形、產權、廣告內容、或其他資料若有不實或違法情事,或與客戶聯絡交易過程中若衍生民事或刑事等法律問題,皆與本網站無關,所有商標、文章、名稱等版權,皆歸屬原著作者所有!