淡水區淡金路公寓四樓近淡海新市鎮|新北市-淡水區-法拍屋
-
-
- 案號:113高104448115/01/08 (四)10:30
- 房屋類型:法拍公寓
- 總登記坪數:26.25坪
- 每坪單價:10.48萬/坪
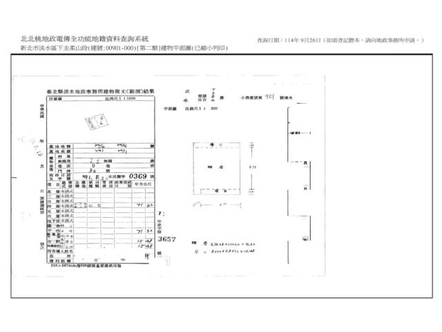
- 地址:新北市淡水區淡金路三段46巷22號4樓
留言
檢舉
物件介紹
詳細資料
開標日期
:
2026/01/08 (四) 10:30
特色描述
【法院筆錄內容】
1‧901建號拍定後點交。
2‧民國114年2月17日現場執行時,經開鎖入內檢視為空屋,已斷水斷電,四周牆面因嚴重漏水均已剝落,天花板及樑柱有部分鋼筋裸露情形。拍賣標的經查相關主管機關後,並無發生非自然死亡情形,亦無發生過火災事件,亦非屬列管之海砂屋、地震受損屋。依強制執行法第113條準用第69條之規定,拍賣物買受人就物之瑕疵無擔保請求權,不得於拍定後主張,請應買人留意。惟現在實際情形如何,仍請應買人自行查明注意。
3‧投標人應自行查明債務人有無積欠管理費,並注意拍定後民法第826條之1第3項規定之適用問題。
《拍賣抵押物》
【保證金】
55萬
【拍賣履歴】
一拍2025/10/23流標底標價格426萬
二拍2025/11/20流標底標價格342萬
三拍2026/01/08底標價格275萬
四拍底標價格218.1萬
【焦點法拍履歴】
👩🏻⚖️從業二十年以上經驗|競競業業|正派經營
🎯投標準備⇥法拍流程說明|標單填寫|案件現場勘查有無特殊情事|成本評估分析
💰銀行貸款⇥法拍物件估價|投標人財力評估|銀行代墊款協助辦理|最高八成
🏡拍定得標⇥強制執行書狀、履勘陳報書狀往返|債務人搬遷協商|遺留物造冊查估
🎁委託代標⇥免費|委託代標未得標⇥免費
🏢鑫創資產管理有限公司
顏麗杏0911-965339營業員證號:(101)登字第212862號
連真甄0909-031993營業員證號:(101)登字第192002號
更多物件☞焦點法拍
經紀人李彥槿:109北市經證字第02110號
物件留言
請注意,如果您詢問的內容與物件不相符合或是廣告,經過審核,系統將會直接刪除您的發問內容